ΑΝΑΛΥΤΙΚΗ ΠΕΡΙΓΡΑΦΗ
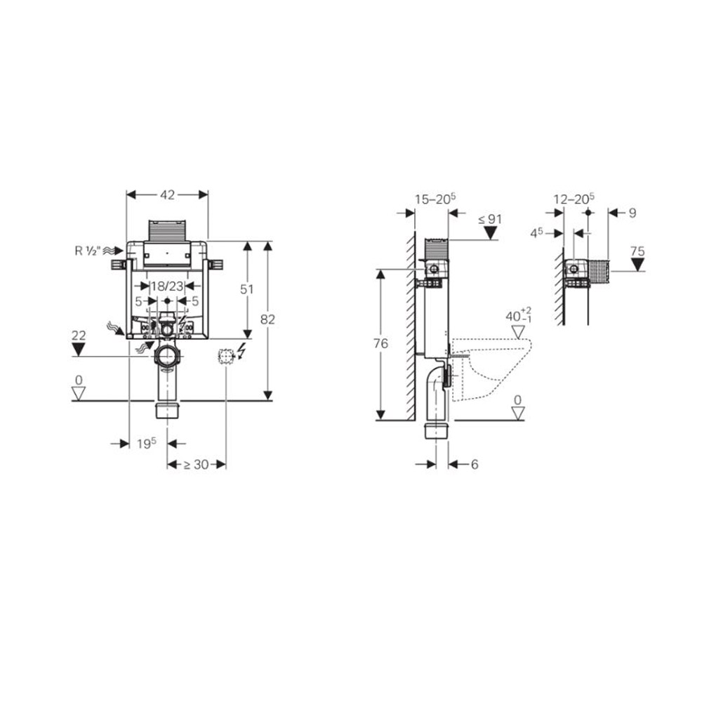
Δώστε λύση σε περιορισμένους χώρους με την κορυφαία τεχνολογία της Geberit, επιλέγοντας το εντοιχιζόμενο καζανάκι Omega (κωδικός 110.001.00.1). Με εξαιρετικά χαμηλό ύψος μόλις 82 cm, το συγκεκριμένο μοντέλο είναι η ιδανική επιλογή για εγκατάσταση σε σημεία με περιορισμό ύψους, όπως κάτω από παράθυρα, επικλινείς στέγες ή χαμηλά στηθαία. Είναι σχεδιασμένο για τοποθέτηση σε τοίχο με διπλό τούβλο (πάχους 12 cm) και διαθέτει ενσωματωμένο πλαίσιο στήριξης για την απόλυτη ασφάλεια της κρεμαστής λεκάνης. Η σειρά Omega προσφέρει τη μοναδική δυνατότητα τοποθέτησης της πλακέτας ενεργοποίησης είτε στην μπροστινή πλευρά είτε στο πάνω μέρος (οριζόντια), χαρίζοντάς σας απόλυτη ελευθερία στον σχεδιασμό. Κατασκευασμένο στη Γερμανία, εγγυάται αθόρυβη λειτουργία, πλήρη προστασία από την εφίδρωση και συμβατότητα με τις κομψές πλακέτες Geberit Omega (Omega 20, 30, 60).
Τεχνικά Χαρακτηριστικά:
Τύπος: Εντοιχιζόμενο καζανάκι Omega Line
Χρήση: Για κρεμαστή λεκάνη σε τοίχο με διπλό τούβλο (12 cm)
Ιδιαιτερότητα: Χαμηλό ύψος (82 cm) - Κατάλληλο για τοποθέτηση κάτω από παράθυρο
Χειρισμός: Από μπροστά ή από πάνω (Top or Front actuation)
Σύνδεση νερού: Αριστερά
Πίεση λειτουργίας: 0.1 - 10 bar
Ρύθμιση ροής (Εργοστασιακή): 6 L & 3 L (Dual Flush)
Εύρος μεγάλης ροής: 4.5 / 6 / 7.5 L
Εύρος μικρής ροής: 3 - 4 L
Ιδιότητες: Πλήρως μονωμένο κατά της εφίδρωσης, πλαίσιο στήριξης με 4 σημεία
Συμβατές Πλακέτες: Σειρές OMEGA (20, 30, 60)
Προέλευση: Made in Germany
Περιεχόμενα Συσκευασίας:
Σύνδεση παροχής νερού / Γωνιακή βάνα 1/2''
Σετ σύνδεσης κρεμαστής λεκάνης
Συστολή αποχέτευσης 90/110 & Καμπύλη αποχέτευσης 90°
Κοχλίες στερέωσης Μ12 & προστατευτικά
Προστατευτικές τάπες και προστατευτική φυσούνα